• Objekt-Nr. 1124_10
  • Baujahr 2025
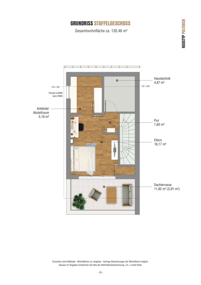
  • Zimmer 5
  • Wohnfläche 130 m²
  • Grundstücksfläche 168 m²
  • Stellplätze 3
  • Verfügbar ab Ende 2026
  • Typ Doppelhaushälfte
  • Kaufpreis 365.000,00 EUR
  • Courtage Provisionsfrei für Käufer

Ausbauhaus mit Grundstück in Marktheidenfeld! Baustellen-Besichtigung am So., 23.11. von 14-16 Uhr -

97828 Marktheidenfeld

Wir laden Sie herzlich zur Baustellen-Besichtigung am Sonntag, den 23. November von 14-16 Uhr auf das Grundstück in die Bahnhofstr. 14 ein. Sie erhalten an diesem Tag Informationen zu den 23 neuen KfW-40-Doppehäusern und können den Baufortschritt live erleben. Für das leibliche Wohl gibt es frisch gezapftes Bier von der Privatbrauerei Martinsbräu sowie Glühwein - genießen Sie regionale Spezialitäten in entspannter Atmosphäre. Für unsere kleinen Besucher gibt es eine Buddel-Ecke mit Baggern. -------------------------------------------------------------------------- Hier können Sie ein attraktives Ausbauhaus kaufen und selbst ausbauen. Der Kaufpreis enthält folgendes: - Grundstück mit Hausanschlüssen - Baugenehmigung - Haus in Massivbauweise mit Dach, Fenstern und fertiger Fassade - Innentreppe - Innenwände - Energieausweis KfW 40 Standard - Wärmelieferung durch Tiefenbohrung * Sie müssen sich nicht um die Baugenehmigung kümmern. * Sie bekommen ein Haus mit Dach und Fenstern ohne Rohbaustress. * Sie können Ihre Eigenleistungen in einer trockenen Hülle entspannt angehen. *** So können Sie sich Ihr Eigenheim leisten !!! Die Häuser bieten alles was eine Familie zum Wohnen braucht: - top Grundrisse mit Platz für alle - Garten mit Terrasse - zeitgemäße Architektur - 5 Zimmer individuell planbar - großes Badezimmer - Raum für Gäste-WC im Erdgeschoss - zwei Stellplätze, Garage möglich Warum bezahlen Sie Miete, wenn Sie sich Eigentum leisten können? Nutzen Sie Ihre handwerklichen Fähigkeiten und bauen Sie Ihr Haus selbst aus. Auf Wunsch können die Häuser auch schlüsselfertig gebaut werden. Bitte beachten Sie unsere anderen Anzeigen. Rufen Sie uns an! Wir beraten Sie gerne! Alle Bilder sind unverbindliche Visualisierungen!

Ausstattung
Die Häuser werden in Massivbauweise erstellt. Der Ausbau des Rohbauhauses wird vom Käufer in Eigenleistung erbracht. Die Energieeffizienzhäuser werden in KFW-40 Standard gebaut, der Heizungsanschluss ist konzipiert durch Erdwärmebohrungen in Kombination mit Wärmepumpen. Sie heizen also schon jetzt ohne Öl oder Gas.

Weitere Angaben
Haben wir Ihr Interesse geweckt? Rufen Sie einfach an! Wir freuen uns, Ihnen dieses spannende Konzept vorzustellen zu können. Ihren Ansprechpartner, Herrn Jörg Rosenwirth, erreichen Sie unter 09391 8107404. Alle im Angebot enthaltenen Angaben, Abmessungen und Preise beruhen auf Informationen des Auftraggebers (oder eines Dritten). Reinhart Immobilien Marketing GmbH & Co. KG übernimmt hierfür keine Haftung.

Energie / Versorgung

Ernergieausweistyp BEDARF
Typ Doppelhaushälfte
Baujahr 2025
Energieeffizienzklasse A+
Gültigkeit bis 09.07.2033

Bilder (16)

 

Lage
Das neue Baugebiet liegt naturnah am Ortsrand von Marktheidenfeld. Dies lädt zu Spaziergängen am Main oder in den angrenzenden Wäldern ein. Die meisten Häuser sind nach Südwesten ausgerichtet, dies garantiert Ihnen Sonnenstunden. Marktheidenfeld ist eine charmante Stadt in Bayern. Mit Blick auf den malerischen Main und umgeben von idyllischen Weinbergen, bietet die Stadt eine einzigartige Mischung aus Geschichte, Kultur und natürlicher Schönheit und mit seinen zahlreichen Freizeit-, Sport-, Einkaufs- & Kulturangeboten die idealen Voraussetzungen für ein abwechslungsreiches und erholsames Wohnen. In der Umgebung finden sich zahlreiche Wanderwege, die durch die malerischen Weinberge führen. In Marktheidenfeld gibt es eine Auswahl an Geschäften und Supermärkten, in denen man alles für den täglichen Bedarf einkaufen kann. Die meisten Geschäfte befinden sich in der Hauptstraße und den umliegenden Straßen. In Marktheidenfeld gibt es verschiedene Kindergärten, Schulen und eine Berufsschule. Eingebettet zwischen Frankfurt und Würzburg am Mainviereck hat Marktheidenfeld eine direkte Anbindung and die Autobahn A3. Auch kulinarisch kommt man durch die vielfältige Gastronomie voll auf seine Kosten. Das pulsierende Mittelzentrum der knapp 12.000 Einwohner großen Stadt mit ausgezeichneten Zukunftsprognosen ist ein Magnet für Jung und Alt.

Was können wir für Sie tun?

Ihre Vorteile

  • Umfassende Objektinformationen
  • Persönliche Einzelbesichtigung
  • Vorabinformation für vorgemerkte Kaufinteressenten
  • Bei allen Verhandlungen sind wir Ihr Partner und Berater – auch beim notariellen Kaufvertrag
  • Kontinuierliche Weiterbetreuung in allen Angelegenheiten (z.B. Anschlussvermietung)

     

Ihr Ansprechpartner

Jörg Rosenwirth
004993918107404
joerg.rosenwirth@reinhart-immo.de

Was können wir sonst noch für Sie tun?

Individuelles Beratungsgespräch

 

Wir garantieren unseren Kunden die bestmögliche Betreuung, weil wir für jedes Fachgebiet einen oder mehrere Spezialisten vorweisen können.

Erstberatung

 

Kostenfreie und unverbindliche Erstberatung für unseren Auftraggeber – Diskrete Abwicklung Ihres Immobilienverkaufs durch Erstberatung der Interessenten in unserem Büro.

Empfehlungsprämie

 

Wir bedanken uns bei Ihnen für jeden neuen Kunden, der bei Reinhart Immobilien Marketing GmbH & Co. KG ein Grundstück, eine Eigentumswohnung oder ein Haus erwirbt oder verkauft.

Unsere Webseite verwendet Cookies und Google Analytics um dir das bestmögliche Nutzererlebnis zu garantieren. Mehr Infos erhältst du in unserer Datenschutzerklärung.